Emplaçament
Barcelona, Barcelonès, Barcelona
2017 – 2018
Execució de la 1a fase l’any 2018.
Proposta
UTE AAUP Arquitectes; Isabel Bennasar; Jaume Artigues; TADEC
Promotor
BIMSA (Ajuntament de Barcelona)











Emplaçament
Barcelona, Barcelonès, Barcelona
2017 – 2018
Execució de la 1a fase l’any 2018.
Proposta
UTE AAUP Arquitectes; Isabel Bennasar; Jaume Artigues; TADEC
Promotor
BIMSA (Ajuntament de Barcelona)
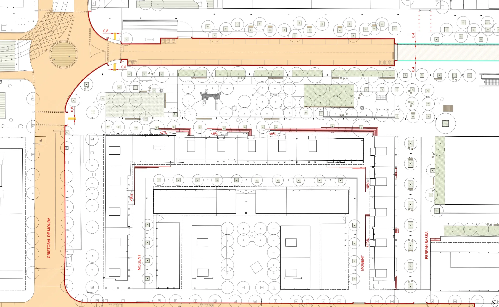
La justificació del present projecte de reurbanització rau en la necessitat d’augmentar l’espai destinat a vianants, ajustar el vial dels vehicles i aparcaments, millorar la qualitat dels paviments, resoldre l’accessibilitat, fer més eficient l’enllumenat, sanejar l’arbrat existent i plantar nou arbrat i nova jardineria i implementar la Mesura de Govern: “Estratègia cap a una política de joc a l’espai públic.
Alfons el Magnànim és un pla de grans dimensions, 530 metres de longitud per 50 metres d’amplada, format per un vial de doble sentit amb aparcament i dues grans voreres (Prim i Besòs) amb una plantació d’arbrat molt consolidada. Es una oportunitat de recuperar un paper assignat pel PGM amb la qualificació 6b, la creació d’un Parc i Jardí de caràcter local.