Emplaçament
Creixell, Tarragonès, Tarragona
En curs
Proposta
AAUP arquitectes, Jordi Romero, Guillem Gascón, Oriol Marí i Georgina Fortuny







Emplaçament
Creixell, Tarragonès, Tarragona
En curs
Proposta
AAUP arquitectes, Jordi Romero, Guillem Gascón, Oriol Marí i Georgina Fortuny
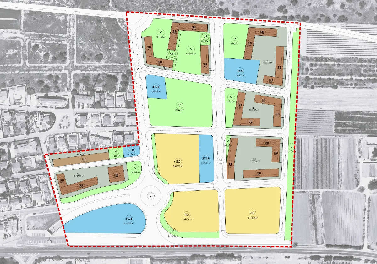
L’àmbit objecte de Modificació es correspon en la seva totalitat amb l’àmbit definit pel Pla General d’ordenació de Creixell com a Sector IV “Sínies Nord”, delimitat per la carretera N-340, la urbanització Creixell Mar, el vial de circumval·lació i el límit de la finca Mas Pastoret.
A hores d’ara, l’àmbit de la Modificació del Pla parcial està ocupat per finques agrícoles parcialment conreades i matollar, amb l’excepció de les actuacions amb front a la N-340, derivades de les dues modificacions puntuals anteriors, que han resultat en la construcció del pas soterrat sota la carretera N340, la construcció del Mercat municipal i la construcció d’una instal·lació comercial de l’empresa Lidl a l’illa 2 del Pla parcial.
La Modificació del PGOU permet assolir transformacions en un sentit de millora dels interessos municipals, més enllà de la diversificació tipològica amb la conseqüent creació d’espais lliures, privats o públics (aquests en una proporció molt superior a la legalment exigible), i de forma molt rellevant la creació de una quantitat notable de sostre per habitatge de protecció pública.
Un altre element a favor d’aquesta transformació és la consolidació d’una polaritat de comerç (local i també d’àmbit supramunicipal), que ja havia estat iniciada amb la creació del Mercat municipal i el centre Lidl en aquest mateix sector mitjançant les anteriors modificacions puntuals. La posició estratègica, a la N-340 i també en el punt d’accés a les platges, garanteix un pol d’activitat econòmica en un municipi sense indústria i amb una limitada oferta hotelera.
el repte més important que assumeix el desenvolupament urbanístic del sector és el de poder desenvolupar una implantació urbana de dimensions relativament grans (per a l’escala de Creixell), que tingui identitat pròpia tot participant de la identitat del conjunt de la ciutat, i que la seva implantació esdevingui un element de transició en aquesta dialèctica ciutat-camp, i fins i tot sigui capaç de crear paisatges enriquidors a través de l’urbanisme d’avui i l’exigència de patrons de qualitat de la nova arquitectura.