Emplaçament
Calella, Maresme, Barcelona
2021
Proposta
AAUP arquitectes, Jordi Romero i Guillem Gascón
Promotor
Diputació de Barcelona










Emplaçament
Calella, Maresme, Barcelona
2021
Proposta
AAUP arquitectes, Jordi Romero i Guillem Gascón
Promotor
Diputació de Barcelona
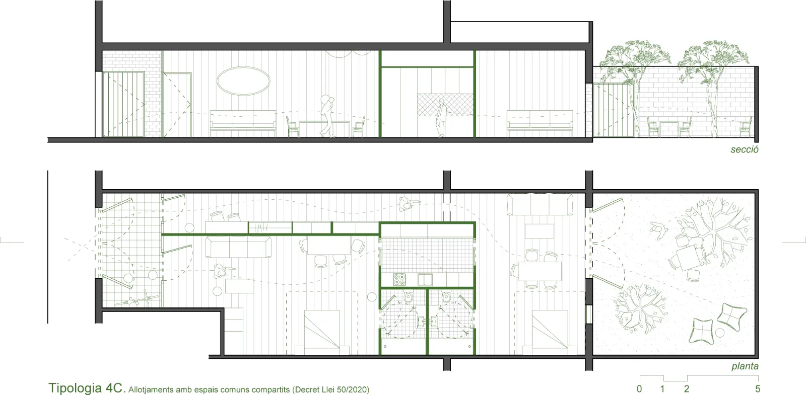
Com en molts indrets de Catalunya, en el municipi de Calella hi ha una forta demanda d’habitatges socials i assequibles, adequats a la capacitat econòmica de la població i sobretot destinats a gent gran i joves.
El treball realitzat per AAUP arquitectes analitza la oportunitat que presenta Calella per augmentar el seu parc d’habitatge social a partir de la transformació estructural del carrer Jovara.
Aquest carrer, d’uns 1.400 metres de longitud i que forma part del primer eixample del nucli, presenta de fa anys molts locals buits. La seva ubicació a segona línia de mar, paral·lel al concorregut carrer de l’Església, i a prop del centre de dia per a la gent gran i del CAP, el converteix en un lloc ideal per estudiar un canvi d’ús dels locals en planta baixa per a destinar-los a habitatge social, adaptats i de lloguer.
El document explora les possiblitats de transformar les plantes baixes de locals en habitatge social i proposa mecanismes per fomentar-ho. S’elabora un recull d’exemples tipològics a partir de les característiques bàsiques mitjanes dels locals comercials, aparcaments i magatzems del carrer Jovara. Aquests exemples, s’han d’entendre com a alternatives tipus per uns locals abstractes basats en les mitjanes de la informació disponible.